Inhalt
Für die Bearbeitung eines Grundstücks verwenden Gärtner nicht nur einen handgeführten Traktor, sondern auch primitive Geräte. Früher wurden sie unabhängig voneinander hergestellt, jetzt finden Sie werkseitig hergestellte Optionen. Ein solches Werkzeug ist eine Wunderschaufel namens Ploughman. Im Aussehen sind dies Doppelgabeln, die einen Bodenaufreißer bilden. Während der Arbeit erfolgt das Anheben einer Erdschicht mit einer Schaufel des Pflügers aufgrund des Hebels durch die Anstrengung der Hände und nicht des Rückens.
Verwendung des Tools
Das Prinzip der Verwendung einer Schaufel ist einfach. Das Graben der Erde erfolgt mit einem Rückschritt von ca. 10–20 cm. Um dies klarer zu machen, bewegt sich eine Person mit dem Rücken vorwärts und zieht ein Instrument hinter sich her. Nach dem Aufstellen der Schaufel auf dem Boden werden die Arbeitsgabeln eingedrückt. Treten Sie dazu mit einem Fuß auf einen speziellen Stopp.
Während der Boden mit der Schaufel des Pflügers gelockert wird, kann auch auf den oberen Jumper der Arbeitsgabeln gedrückt werden. Auf den ersten Blick mag diese Methode aufgrund der entfernten Position dieses Elements unpraktisch erscheinen. Außerdem klammert sich das Bein aus Gewohnheit an den Anschlag. Der Entwickler hatte sich jedoch ursprünglich eine solche Arbeitsweise vorgestellt. Mit der Zeit erkennt eine Person nach mehreren Trainingseinheiten, dass dies die bequemste und einfachste Option ist. Das Drücken der Heugabel in den Boden kommt schließlich nicht von der Anstrengung des Beins, sondern vom Körpergewicht. Ein Mensch muss seinen Körper nur ein wenig nach vorne bewegen.
Diese Arbeitsweise führt nach der Bearbeitung von 1–2 Hektar Garten nicht zu Schmerzen im Hüftgelenk. Mit dem Erwerb von Fähigkeiten bewegt sich das Bein intuitiv am Anschlag vorbei, um auf dem Jumper der Arbeitsgabel zu stehen. Der Pflüger hat auch seine Nachteile, aber das Werkzeug ist immer noch einfacher zu handhaben als eine gewöhnliche Schaufel.
Das Video zeigt die Arbeit des Wunders einer Schaufel auf festem Boden:
Schaufelgerät Pflüger
Bevor ich darüber nachdenke Zeichenwerkzeug zeichnenmüssen Sie verstehen, wie es funktioniert. Die Schaufel besteht aus zwei Mistgabeln. Ein Teil ist stationär und der andere ist beweglich. Wenn die Arbeitsgabeln eine Erdschicht anheben, passiert sie die Zähne des stationären Teils und die Erdklumpen werden zerkleinert. Somit erfolgt eine Lockerung bis zu einer Tiefe von 15–20 cm.
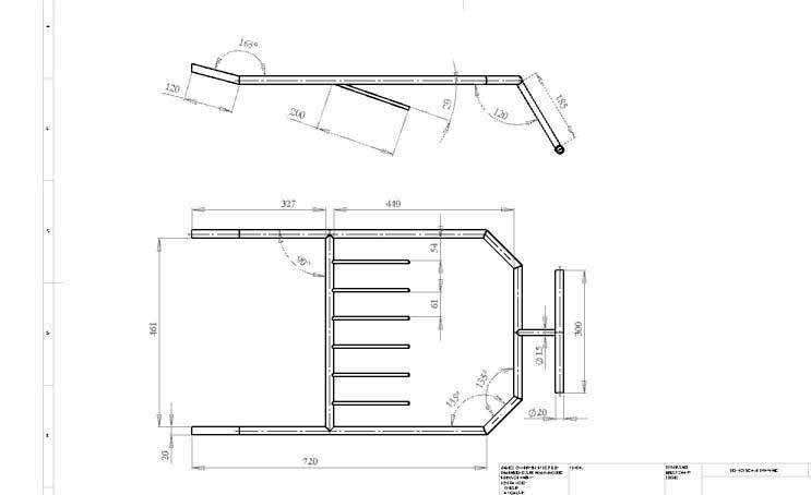
Der Pflüger wird in verschiedenen Modifikationen hergestellt, die sich in der Größe unterscheiden. Laut Bewertungen ist die Wunderschaufel Plowman mit einer Rahmenbreite von 35 cm jedoch gefragter. Das Werkzeug wiegt ca. 4,5 kg. In diesem Fall beträgt die Länge des Rahmens 78 cm und die Arbeitsgabeln 23 cm. Die Schaufel hat 5 Zähne und wird normalerweise ohne Griff verkauft. Das Diagramm zeigt die Hauptknoten des Werkzeugs.
Aus der Zeichnung ist ersichtlich, dass das Gerät eine Wunderschaufel ist, die einfach ist. Darüber hinaus stellt es keine Gefahr für eine Person dar, die während der Arbeit verletzt wird. Der Arbeitsteil ist eine breite Heugabel. Sie sind mit zwei Anschlägen am gemeinsamen Rahmen befestigt, um die Mobilität des Elements zu gewährleisten. Die Zähne sind innen mit dem stationären Rahmen verschweißt. Eine Betonung von zwei Elementen wird vor gemacht. Es ist eine Erweiterung des Rahmens. Das Backgauge des Pflügers hat die Form des Buchstabens T.
Der Rahmen selbst besteht aus einem Hohlrohr. Dies stellt die Leichtigkeit des Werkzeugs sicher. Die Zähne bestehen aus gehärtetem Stahl. Um das Wunder zu wirken, wird die Schaufel auf einen Holzgriff gelegt.
Fähigkeiten Wunderschaufel
Das Werkzeug soll die manuelle Arbeit erleichtern, die mit dem Lösen des Bodens verbunden ist.Im Vergleich zur herkömmlichen Bajonettversion können Sie mit diesem Gerät in einer Stunde etwa zweihundert Quadratmeter Land bearbeiten. Gleichzeitig werden die Arbeitskosten minimiert.
Je nach Größe der Schaufel wird in einem Durchgang ein für das Gartenbett vorbereiteter Streifen mit einer Breite von bis zu 43 cm erhalten. Bei Bedarf kann das Lösen bis zur vollen Tiefe von bis zu 23 cm oder oberflächlich ohne durchgeführt werden Fahren Sie die Gabeln vollständig in den Boden. Während des Grabens steigen die Wurzeln mit den Zähnen auf Unkraut an die Oberfläche, werden aber nicht in Stücke gerissen. Dies verhindert eine weitere Reproduktion.
Warum ist ein Pflüger besser als eine gewöhnliche Schaufel?
Der Hauptvorteil des Pflügers ist die Notwendigkeit, weniger Aufwand zu betreiben. Nachdem eine Person einige Stunden mit einer Bajonettschaufel gearbeitet hat, verspürt sie starke Rückenermüdung sowie Schmerzen im Hüftgelenk. Der Pflüger wird dieses Problem los.
Bei der Bodenbearbeitung müssen Sie nach der Verwendung einer Bajonettschaufel Klumpen aufbrechen und den Boden mit einem Rechen ausgleichen. Nach dem Durchgang des Pflügers steht ein Beet zum Pflanzen bereit. Das Werkzeug kann sogar schnell einen kleinen Garten zum Pflanzen von Kartoffeln ausgraben.
Ein weiterer Vorteil des Plowman ist die Heugabel. Die durchgehende Schneidklinge des Bajonetts trennt nicht nur die Wurzeln des Unkrauts, sondern zerhackt auch die Regenwürmer. Die Heugabel hat schmale Zähne, die den nützlichen Bewohnern der Erde in keiner Weise schaden können.
Warum ist ein Pflüger besser als ein handgeführter Traktor?
Natürlich ist ein Grubber oder ein handgeführter Traktor in der Produktivität Handwerkzeugen um ein Vielfaches überlegen. Hier finden Sie jedoch auch die Vorteile der Wunderschaufel. Beginnen wir mit der Wirtschaft. Der Pflüger benötigt kein Auftanken von Öl und Kraftstoff, keinen Kauf von Verbrauchsmaterialien und Ersatzteilen für Reparaturen.
Mit einem handgeführten Traktor ist es nicht immer möglich, in schwer zugängliche Bereiche des Gartens zu gelangen. Darüber hinaus hat das Gerät ein beeindruckendes Gewicht und kann während der Kultivierung mit einem Cutter auf hartem Boden abprallen. Nach mehreren Stunden solcher Arbeit verspürt eine Person starke Müdigkeit in Armen und Rücken.
Mit eigenen Händen einen Pflüger bauen
Natürlich ist dieses Werkzeug einfacher zu kaufen, aber wenn es zu Hause Metall und Schweißarbeiten gibt, warum nicht den Pflüger selbst herstellen? Daran ist nichts Schwieriges. Sie müssen nur das Diagramm sorgfältig lesen.
Die Breite des selbstgemachten Pflügers hängt nur von seinen Wünschen ab. Mit einem Anstieg dieses Indikators beschleunigt sich der Arbeitsprozess, gleichzeitig beschleunigt sich die Ermüdung. Es ist normalerweise optimal, ein Werkzeug mit einer Breite von 35 bis 50 cm herzustellen, aber nicht mehr.
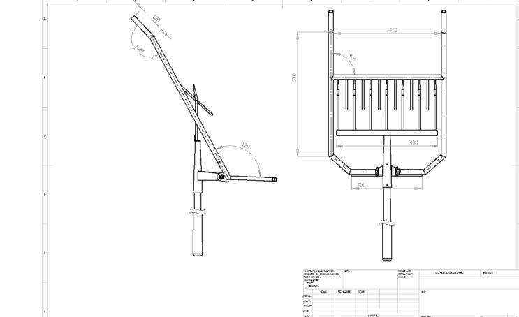
Das Prinzip des Zusammenbaus der Struktur ist wie folgt:
- Für die Herstellung von Gabelzähnen werden gehärtete Stahlstangen ausgewählt. Geeignet sind flachgewalzte Produkte mit einer Breite von bis zu 20 mm oder einer Verstärkung. Die Anzahl der Bajonette hängt von der Breite des Rahmens ab. Sie sind geschweißt und halten sich an eine Mindeststufe von 100 mm.
- Die Gabeln müssen geschärft werden, damit sie leicht in den Boden passen. Dazu schneidet der Schleifer in einem Winkel von ca. 30 °Über... Für Chernozem kann der Schnittwinkel auf 15 reduziert werdenÜber, aber solche Bajonette werden schneller stumpf.
- Als nächstes machen Sie eine Stützstange. Hier können Sie Verstärkung verwenden, aber dann erhöht sich das Gewicht der Schaufel. Es ist besser, ein Vierkantrohr von mindestens 10 mm zu bevorzugen.
- Die Basis für den Griff ist aus einem 50 mm dicken kreisförmigen Stahlrohr geschweißt.
- Die Anschlagstange wird mit einem Lichtbogen aus Stahlblech mit einer Mindestdicke von 5 mm gebogen. Die Stelle der Falte wird zum Schneiden mit der Basis verschweißt, und die gegenüberliegenden beiden Enden werden dann an der Stange des stationären Rahmens befestigt.
Wenn alle Elemente geschweißt sind, erhalten Sie den funktionierenden beweglichen Teil des Wunders der Schaufel. Als nächstes müssen Sie die zweite stationäre Hälfte machen. Es wird auf die gleiche Weise hergestellt, nur die Zähne müssen nicht geschärft werden. Der Rahmen wird aus dem Vierkantrohr herausgebogen, so dass vorne zwei Anschläge gebildet werden. Ein T-förmiger Anschlag ist an der Rückseite der Schaufel angeschweißt. Die Verbindung der beiden Teile der Schaufel wird beweglich gemacht. Dazu werden Laschen mit der Trägerstange und dem stationären Rahmen verschweißt, wonach die beiden Elemente mit einem Bolzen oder einer Haarnadel verbunden werden.Das Ende der Arbeit ist die Installation eines Holzgriffs.
Referenzen
Anstatt zusammenzufassen, werfen wir einen Blick auf die Bewertungen von Gärtnern über das Wunder eines Schaufelpflügers.








